Immobilien in Paderborn und Umgebung

Verkaufsfläche in zentraler Lage von Hövelhof

Ansicht
Ansicht
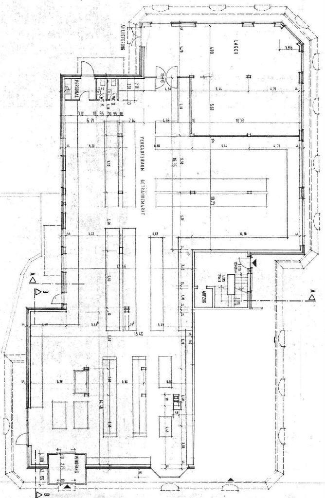
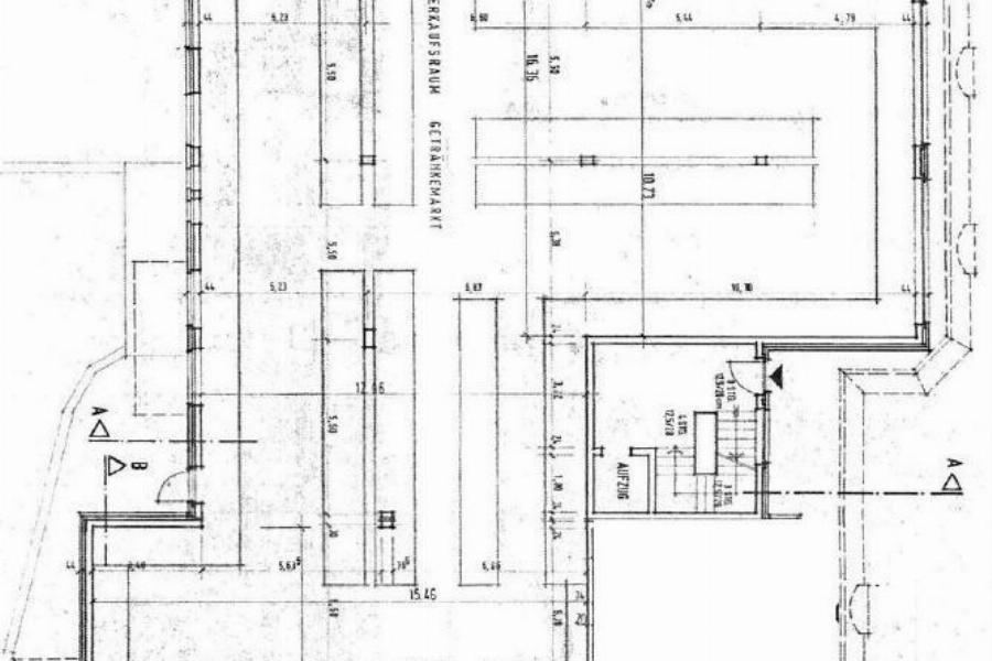
Grundriss
spacer.png
spacer.png
spacer.png
spacer.png
spacer.png
spacer.png
spacer.png
3.500,00 EUR
Kaltmiete
--
33161 Hövelhof
Übersicht
Objekt-Nr. 3-6202
Objektart Einzelhandel
Objekttyp Ladenlokal
Vermarktung Miete/Pacht
Nutzung Gewerbe
Land Deutschland
Bundesland Nordrhein-Westfalen
Region Paderborn
PLZ 33161
Ort Hövelhof
Preise und Kosten
Kaltmiete 3.500,00 EUR
Nebenkosten 900,00 EUR
Maklerprovision keine Mieterprovison
Kaution 7.000,00 EUR
Außenstellplätze 20
Flächen
Nutzfläche 736,15 m²
Gesamtfläche 736,15 m²
Ausstattung
Zimmer 3,0
Gäste-WC 1
Boden Fliesen
Heizungsart Zentralheizung
Befeuerung Gas
Stellplatzart(en) Außenstellplatz
Teeküche ja
Zustandsangaben
Baujahr 1993
Energieverbrauch
Ausstellungsdatum 15.05.2024
Ausweiserstellung ab dem 1.5.2014
Energieausweis Art Verbrauch
Endenergieverbrauch kWh/(m²a) 105,3
Primärenergieträger Erdgas
Gebäudeart kein Wohngebäude
Befeuerung Gas
Sonstiges
verfügbar ab 01.06.2026 oder früher

Objektbeschreibung

Im Zentrum von Hövelhof steht eine großzügige Gewerbefläche mit ca. 736 m² zur Verfügung, die sich im Erdgeschoss eines gepflegten Wohn- und Geschäftshauses befindet. Die Lage überzeugt durch ihre zentrale Position mit hoher Sichtbarkeit und Kundenfrequenz.

Eine große Schaufensterfront sorgt für optimale Präsentationsmöglichkeiten und lässt viel Tageslicht in den weitläufigen Verkaufsraum, der flexibel nutzbar ist und sich für unterschiedliche Geschäftskonzepte eignet. Ergänzt wird die Fläche durch ein separates Lager mit praktischer Anlieferungsmöglichkeit, zwei WC-Einheiten sowie einen Personalraum mit eigenem Zugang, der diskrete Abläufe ermöglicht.

Stellplätze sind in ausreichender Anzahl vorhanden und sorgen für eine komfortable Erreichbarkeit für Kunden und Mitarbeitende.

Die monatliche Miete beträgt 3.500,00 Euro zuzüglich Heiz- und Nebenkosten in Höhe von 900,00 Euro, jeweils zuzüglich gesetzlicher Mehrwertsteuer.

Die Vermietung erfolgt provisionsfrei.

Diese Immobilie bietet ideale Voraussetzungen für Einzelhandel, Dienstleistungsangebote oder andere gewerbliche Nutzungen und stellt eine attraktive Basis für eine erfolgreiche Geschäftsentwicklung dar.

Nutzen Sie diese Gelegenheit, um Ihr Unternehmen in einer attraktiven und gut erreichbaren Lage zu etablieren wir freuen uns auf Ihre Anfrage!

Lagebeschreibung

Mit den öffentlichen Verkehrsmitteln erreicht man Paderborn, Gütersloh, Bielefeld und die Ortsteile von Hövelhof. Mit dem PKW erreicht man in wenigen Minuten die Autobahn in Richtung Bielefeld und Paderborn.

Verkaufsfläche in zentraler Lage von Hövelhof

-
Bus
-
Autobahn
-
Kindergarten
-
Grundschule
3.500,00 EUR
Kaltmiete
--
33161 Hövelhof

Lagebeschreibung

Mit den öffentlichen Verkehrsmitteln erreicht man Paderborn, Gütersloh, Bielefeld und die Ortsteile von Hövelhof. Mit dem PKW erreicht man in wenigen Minuten die Autobahn in Richtung Bielefeld und Paderborn.

Anbieter kontaktieren
Hinweis: Diese Einwilligung können Sie jederzeit mit Wirkung für die Zukunft widerrufen, indem Sie eine E-Mail an Diese E-Mail-Adresse ist vor Spambots geschützt! Zur Anzeige muss JavaScript eingeschaltet sein! schicken.
Sicherheitscode
Angebot weiterleiten

An:

Von:

Sicherheitscode
Energieausweis
Energieausweis
Ausstellungsdatum 15.05.2024
Ausweiserstellung ab dem 1.5.2014
Energieausweis Art Verbrauch
Endenergieverbrauch kWh/(m²a) 105,3
Primärenergieträger Erdgas
Gebäudeart kein Wohngebäude
Befeuerung Gas

Bade u. Henning Immobilien GmbH

 
 

Westernmauer 30
33098 Paderborn
Tel.: 05251 29062-0
Fax: 05251 29062-20
immobilien@bade-henning.de

 

Bürozeiten

 
 

Mo.: 9:00 - 12:30 und 15:00 - 17:00 Uhr
Di.: 9:00 - 12:30 und 15:00 - 17:00 Uhr
Mi.: 9:00 - 12:30
Do.: 9:00 - 12:30 und 15:00 - 17:00 Uhr
Fr.: 9:00 - 12:30