Mietangebote in Paderborn und Umgebung

Neubau Doppelhaushälfte Erstbezug in der Stadtheide

Wohnbereich mit offener Küche
Wohnzimmer
Treppe
Schlafzimmer
Studio
Hauptbad
Gästebad
Flur
Wärmepumpe
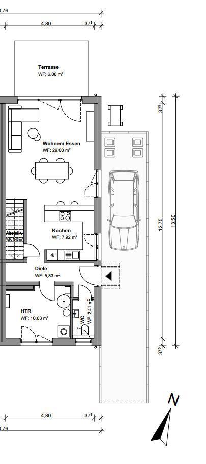
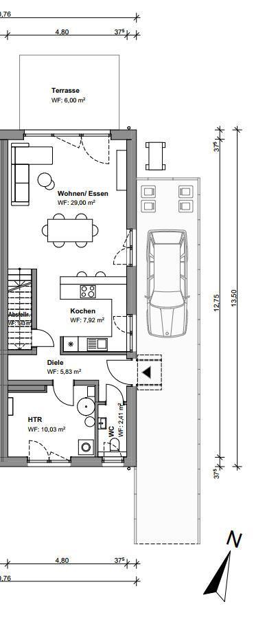
Grundriss Erdgeschoss
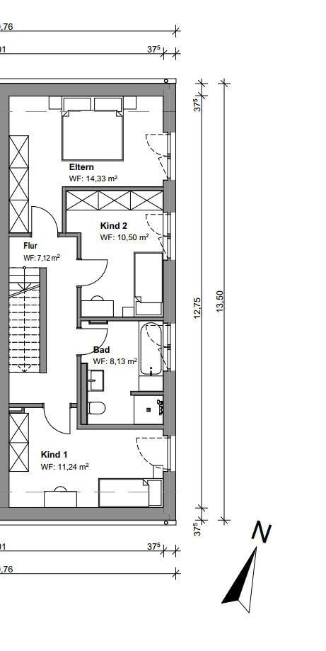
Grundriss Obergeschoss
Grundriss Dachgeschoss
spacer.png
spacer.png
spacer.png
spacer.png
spacer.png
spacer.png
spacer.png
spacer.png
1.872,00 EUR
Kaltmiete
--
33102 Paderborn
Übersicht
Objekt-Nr. 0-6250
Objektart Haus
Objekttyp Doppelhaushälfte
Vermarktung Miete/Pacht
Nutzung Wohnen
Land Deutschland
Bundesland Nordrhein-Westfalen
Region Paderborn
PLZ 33102
Ort Paderborn
Preise und Kosten
Kaltmiete 1.872,00 EUR
Nebenkosten 120,00 EUR
Miete pro m² 13,00 EUR
Kaution 3.864,00 EUR
Außenstellplätze 1
Außenstellplatz Miete 60,00 EUR
Flächen
Wohnfläche ca. 144,00 m²
Grundstück 230,00 m²
Ausstattung
Zimmer 6,0
Balkon/Terrasse 1
Terrassen 1
Zustandsangaben
Baujahr 2025
Energieverbrauch
Ausweiserstellung ohne
Primärenergieträger Luft/Wasser Wämepumpe
Gebäudeart Wohngebäude
Sonstiges
verfügbar ab 01.01.2026

Objektbeschreibung

Willkommen in Ihrem neuen Zuhause mitten in der begehrten Stadtheide!
Genießen Sie das Gefühl von Freiheit und Geborgenheit in dieser modernen Doppelhaushälfte. Mit lichtdurchfluteten Räumen, einem offenen Wohnkonzept und einem eigenen Garten bietet dieses Haus alles, was Familienherzen höherschlagen lässt. Hier verbinden sich Komfort, Energieeffizienz und eine Lage, die keine Wünsche offenlässt.
Ob entspannte Abende auf der Terrasse, Spielen im Garten oder kreative Stunden im großzügigen Studio dieses Zuhause ist mehr als nur vier Wände. Es ist der Ort, an dem Ihre Zukunft beginnt.

Wichtige Hinweise:
Maler- und Tapezierarbeiten sind Sache des Mieters.
Die Einbauküche wird nicht gestellt und muss vom neuen Mieter selbst beschafft werden.
Bezugsfertig ab 01.01.2026
______________________________________
Highlights auf einen Blick
Wohnfläche: ca. 144 m²
Grundstück: ca. 230 m²
Zimmer: 6 (inkl. Studio im Dachgeschoss)
Bäder: Hauptbad mit Badewanne, Dusche und Fenster + Gäste-WC
Technik: Wärmepumpe mit Fußbodenheizung
Extras: Gartenanteil, Stellplatz, Hauswirtschaftsraum
________________________________________
Raumaufteilung
Erdgeschoss:
o Offener Wohn- und Essbereich (ca. 29 m²) mit Zugang zur Terrasse
o Moderne Küche (ca. 8 m²)
o Gäste-WC
o Hauswirtschaftsraum (ca. 10 m²)
o Stellplatz direkt am Haus
Obergeschoss:
o Elternschlafzimmer (ca. 14 m²)
o Zwei Kinderzimmer (ca. 11 m² und 10,5 m²)
o Großzügiges Hauptbad mit Badewanne, Dusche und Fenster
Dachgeschoss:
o Lichtdurchflutetes Studio (ca. 30 m²) ideal als Arbeits- oder Hobbyraum
________________________________________
Ausstattung & Komfort
Fußbodenheizung in allen Räumen
Energieeffiziente Wärmepumpe
Große Fenster für viel Tageslicht
Terrasse mit Gartenanteil für entspannte Stunden im Freien
________________________________________
Kostenübersicht
Kaltmiete: 1.872,- EUR (13,-EUR/m²)
Stellplatz: 60,- EUR
Nebenkosten: 120,- EUR
(zzgl. Haushaltsstrom, Heizstrom sowie Wasser diese Kosten trägt der Mieter direkt gegenüber den Versorgern)
________________________________________
Lage
Die Stadtheide gehört zu den beliebtesten Wohnlagen Paderborns. Hier genießen Sie eine ruhige Umgebung mit hervorragender Infrastruktur: Schulen, Einkaufsmöglichkeiten und Freizeitangebote sind schnell erreichbar. Die Nähe zur Natur und die gute Anbindung an die Innenstadt machen diese Lage besonders attraktiv.
________________________________________
Ihr Vorteil
Das Haus befindet sich im modernen Neubauzustand und bietet Ihnen die Möglichkeit, die letzten Details nach Ihren Wünschen zu gestalten.
________________________________________
Interesse geweckt?
Kontaktieren Sie uns für weitere Informationen oder einen Besichtigungstermin.

Neubau Doppelhaushälfte Erstbezug in der Stadtheide

-
Bus
-
Autobahn
-
Kindergarten
-
Grundschule
1.872,00 EUR
Kaltmiete
--
33102 Paderborn
Anbieter kontaktieren
Hinweis: Diese Einwilligung können Sie jederzeit mit Wirkung für die Zukunft widerrufen, indem Sie eine E-Mail an Diese E-Mail-Adresse ist vor Spambots geschützt! Zur Anzeige muss JavaScript eingeschaltet sein! schicken.
Sicherheitscode
Angebot weiterleiten

An:

Von:

Sicherheitscode

Bade u. Henning Immobilien GmbH

 
 

Westernmauer 30
33098 Paderborn
Tel.: 05251 29062-0
Fax: 05251 29062-20
immobilien@bade-henning.de

 

Bürozeiten

 
 

Mo.: 9:00 - 12:30 und 15:00 - 17:00 Uhr
Di.: 9:00 - 12:30 und 15:00 - 17:00 Uhr
Mi.: 9:00 - 12:30
Do.: 9:00 - 12:30 und 15:00 - 17:00 Uhr
Fr.: 9:00 - 12:30