Mietangebote in Paderborn und Umgebung

3-Zimmer-Wohnung im 1. OG in Paderborn-Wewer - freundlich, hell und gut geschnitten

3-Zimmer-Wohnung im 1. OG in Paderborn-Wewer - freundlich, hell und gut geschnitten

Ansicht
Balkon
Wohnbereich
Küche
Küche
Bad
Bad
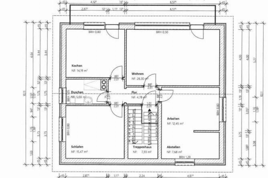
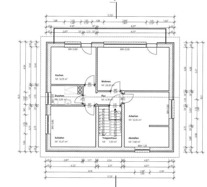
Grundriss
spacer.png
spacer.png
790,00 EUR
Kaltmiete
33106 Paderborn
Angebotsadresse
Übersicht
Objekt-Nr. 0-6290
Objektart Wohnung
Objekttyp keine Angabe
Etage 1.OG
Vermarktung Miete/Pacht
Nutzung Wohnen
Land Deutschland
Bundesland Nordrhein-Westfalen
Region Paderborn
PLZ 33106
Ort Paderborn
Preise und Kosten
Kaltmiete 790,00 EUR
Nebenkosten 200,00 EUR
Heizkosten in der Warmmiete enthalten ja
Miete pro m² 8,59 EUR
Kaution 2.520,00 EUR
Garagen 1
Garagen Miete 50,00 EUR
Flächen
Wohnfläche ca. 92,00 m²
Wohneinheiten 3
Ausstattung
Zimmer 1,0
Schlafzimmer 1
Badezimmer 1
Balkon/Terrasse 1
Balkone 1
Boden Kunststoff, Parkett
Heizungsart Zentralheizung
Befeuerung Öl
Stellplatzart(en) Garage
Wasch/Trockenraum ja
Unterkellert ja
Zustandsangaben
Baujahr 1966
Zustand modernisiert
Energieverbrauch
Ausstellungsdatum 28.08.2022
Ausweiserstellung ab dem 1.5.2014
Energieausweis Art Verbrauch
Energieeffiziensklasse C
Endenergieverbrauch kWh/(m²a) 98,6
Primärenergieträger Heizöl
Gebäudeart Wohngebäude
Befeuerung Öl
Sonstiges
verfügbar ab 01.05.2026

Objektbeschreibung

Lehmstich 12, Whg. 2, 1. OG, 33106 Paderborn 

Diese attraktiv geschnittene 3-Zimmer-Wohnung im 1. Obergeschoss eines gepflegten 3-Parteienhauses bietet ein komfortables und modernes Wohnambiente in ruhiger Lage von Paderborn-Wewer.

Die hellen Räume sind durchdacht angeordnet und vermitteln sofort ein angenehmes Wohngefühl. Besonders hervorzuheben ist das sanierte Tageslichtbad, das mit einer großzügigen Dusche und einem praktischen Handtuchheizkörper ausgestattet ist. Die Küche verfügt über ausreichend Platz für einen Essbereich. 

Für zusätzlichen Wohnkomfort sorgen die hochwertigen Bodenbeläge: Im Wohnzimmer und Arbeitszimmer schafft der gepflegte Parkettboden eine warme Atmosphäre, während in Küche, Schlafzimmer, Diele und Bad modernes, pflegeleichtes Biovinyl zum Einsatz kommt und ein harmonisches Gesamtbild erzeugt. Ein weiteres Plus ist der großzügig gestaltete Balkon, der Ihnen wertvollen Außenraum zum Entspannen bietet.

Beheizt wird das Objekt über eine Ölzentralheizung, wobei die Heiz- und Warmwasserkosten bereits in den Nebenkosten enthalten sind ein Vorteil, der die monatliche Kostenplanung besonders transparent macht. (Die Höhe der Nebenkosten varriert. Bei Einer Person würden 200,00 Euro angesetzt, bei zwei Personen 220,00 Euro)

Zur Wohnung gehören zusätzlich eine Garage (50,00 Euro monatlich), ein separater Kellerraum sowie ein gemeinschaftlich genutzter Wasch- und Trockenkeller.

Die Maler- und Tapezierarbeiten sind vom Mieter durchzuführen; Tierhaltung ist nicht erwünscht. Die Wohnung eignet sich ideal für Singles, Paare oder kleine Haushalte, die eine ruhige Wohnlage, eine gute Raumaufteilung sowie hochwertige Bodenbeläge und moderne Ausstattung zu schätzen wissen. 

3-Zimmer-Wohnung im 1. OG in Paderborn-Wewer - freundlich, hell und gut geschnitten

-
Bus
-
Autobahn
-
Kindergarten
-
Grundschule
790,00 EUR
Kaltmiete
33106 Paderborn
Angebotsadresse
Anbieter kontaktieren
Hinweis: Diese Einwilligung können Sie jederzeit mit Wirkung für die Zukunft widerrufen, indem Sie eine E-Mail an Diese E-Mail-Adresse ist vor Spambots geschützt! Zur Anzeige muss JavaScript eingeschaltet sein! schicken.
Sicherheitscode
Angebot weiterleiten

An:

Von:

Sicherheitscode
Energieausweis
Energieausweis
Ausstellungsdatum 28.08.2022
Ausweiserstellung ab dem 1.5.2014
Energieausweis Art Verbrauch
Energieeffiziensklasse C
Endenergieverbrauch kWh/(m²a) 98,6
Primärenergieträger Heizöl
Gebäudeart Wohngebäude
Befeuerung Öl

Bade u. Henning Immobilien GmbH

 
 

Westernmauer 30
33098 Paderborn
Tel.: 05251 29062-0
Fax: 05251 29062-20
immobilien@bade-henning.de

 

Bürozeiten

 
 

Mo.: 9:00 - 12:30 und 15:00 - 17:00 Uhr
Di.: 9:00 - 12:30 und 15:00 - 17:00 Uhr
Mi.: 9:00 - 12:30
Do.: 9:00 - 12:30 und 15:00 - 17:00 Uhr
Fr.: 9:00 - 12:30