Mietangebote in Paderborn und Umgebung

Großzügige 4-Zimmerwohnung in gepflegtem Mehrfamilienhaus

Großzügige 4-Zimmerwohnung in gepflegtem Mehrfamilienhaus

Hausansicht
Küche
Wohnbereich
Bad
Gäste-WC
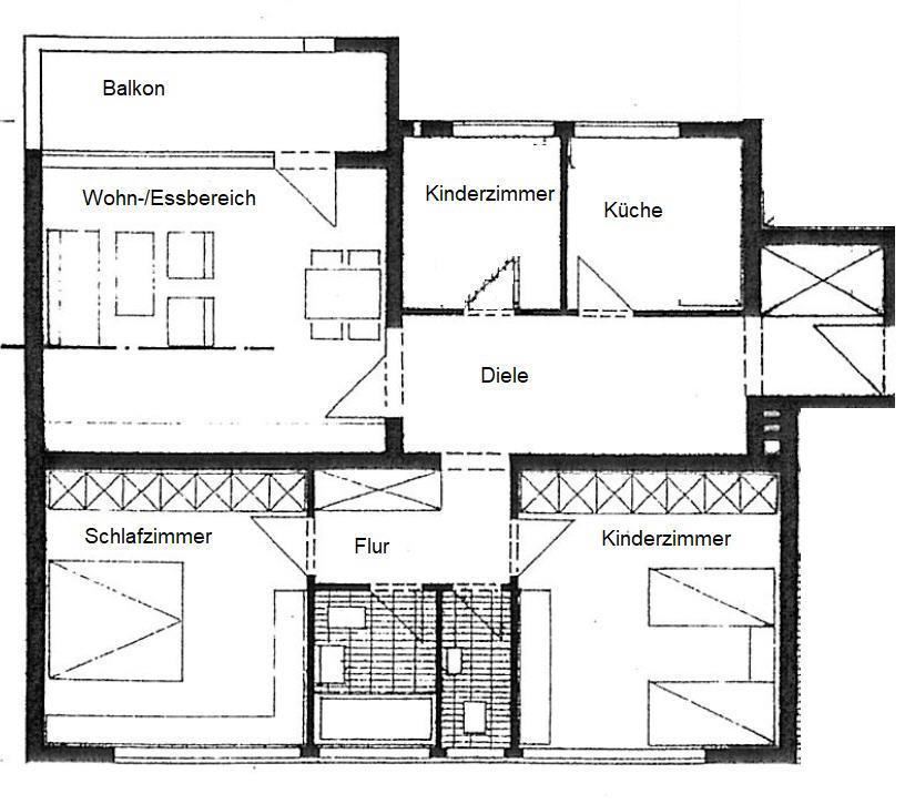
Grundriss
spacer.png
spacer.png
spacer.png
spacer.png
780,00 EUR
Kaltmiete
--
33098 Paderborn
Übersicht
Objekt-Nr. 0-6291
Objektart Wohnung
Objekttyp keine Angabe
Vermarktung Miete/Pacht
Nutzung Wohnen
Land Deutschland
Bundesland Nordrhein-Westfalen
Region Paderborn
PLZ 33098
Ort Paderborn
Preise und Kosten
Kaltmiete 780,00 EUR
Nebenkosten 140,00 EUR
Miete pro m² 8,57 EUR
Kaution 1.560,00 EUR
Flächen
Wohnfläche ca. 91,00 m²
Wohneinheiten 10
Ausstattung
Zimmer 4,0
Schlafzimmer 1
Badezimmer 1
Gäste-WC 1
Gäste WC ja
Balkon/Terrasse 1
Balkone 1
Boden Laminat
Heizungsart Etagenheizung
Befeuerung Gas
Wasch/Trockenraum ja
Unterkellert ja
Zustandsangaben
Baujahr 1970
Energieverbrauch
Ausstellungsdatum 03.09.2018
Ausweiserstellung ab dem 1.5.2014
gültig bis 20.07.2018 00:00:00
Energieausweis Art Bedarf
Energieeffiziensklasse F
Endenergieverbrauch kWh/(m²a) 127,2
Endenergiebedarf kWh/(m²a) 164.9
Primärenergieträger Erdgas
Gebäudeart Wohngebäude
Befeuerung Gas
Sonstiges
verfügbar ab 01.05.2026 oder früher

Objektbeschreibung

Mälzerstr. 41, EG mitte, Whg. 2, 33098 Paderborn

Die großzügig geschnittene 4-Zimmerwohnung überzeugt durch ein durchdachtes Raumkonzept und eignet sich ideal für Familien. Sie verfügt über zwei Kinderzimmer, ein Elternschlafzimmer sowie einen hellen Wohn-/Essbereich mit Zugang zum Balkon. Ergänzt wird das Raumangebot durch eine separate Küche, ein Tageslichtbad mit Dusche sowie ein zusätzliches Gäste-WC. Eine geräumige Diele und ein praktischer Abstellraum sorgen für weiteren Komfort.

Zur Wohnung gehören außerdem ein separater Kellerraum sowie ein gemeinschaftlicher Wasch- und Trockenkeller. Maler- und Tapezierarbeiten sowie der Bodenbelag sind vom Mieter auszuführen und bieten somit die Möglichkeit zur individuellen Gestaltung.

Die Beheizung erfolgt über eine Gasetagenheizung; die Heizkosten werden direkt mit dem Versorger abgerechnet. Eine Tierhaltung ist nicht erwünscht.


Großzügige 4-Zimmerwohnung in gepflegtem Mehrfamilienhaus

-
Bus
-
Autobahn
-
Kindergarten
-
Grundschule
780,00 EUR
Kaltmiete
--
33098 Paderborn
Anbieter kontaktieren
Hinweis: Diese Einwilligung können Sie jederzeit mit Wirkung für die Zukunft widerrufen, indem Sie eine E-Mail an Diese E-Mail-Adresse ist vor Spambots geschützt! Zur Anzeige muss JavaScript eingeschaltet sein! schicken.
Sicherheitscode
Angebot weiterleiten

An:

Von:

Sicherheitscode
Energieausweis
Energieausweis
Ausstellungsdatum 03.09.2018
Ausweiserstellung ab dem 1.5.2014
gültig bis 20.07.2018 00:00:00
Energieausweis Art Bedarf
Energieeffiziensklasse F
Endenergieverbrauch kWh/(m²a) 127,2
Endenergiebedarf kWh/(m²a) 164.9
Primärenergieträger Erdgas
Gebäudeart Wohngebäude
Befeuerung Gas

Bade u. Henning Immobilien GmbH

 
 

Westernmauer 30
33098 Paderborn
Tel.: 05251 29062-0
Fax: 05251 29062-20
immobilien@bade-henning.de

 

Bürozeiten

 
 

Mo.: 9:00 - 12:30 und 15:00 - 17:00 Uhr
Di.: 9:00 - 12:30 und 15:00 - 17:00 Uhr
Mi.: 9:00 - 12:30
Do.: 9:00 - 12:30 und 15:00 - 17:00 Uhr
Fr.: 9:00 - 12:30