Mietangebote in Paderborn und Umgebung

große Dreizimmerwohnung im Riemekeviertel

Ansicht
Dachterrasse
Dachterrasse
Wohnbereich
Wohnbereich
Wohnbereich
Essbereich
Küche
Schlafzimmer
Kinderzimmer
Kinderzimmer
Bad
Diele
Bild14
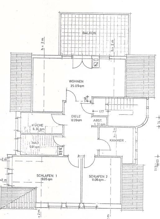
Grundriss
spacer.png
spacer.png
spacer.png
spacer.png
spacer.png
590,00 EUR
Kaltmiete
--
33102 Paderborn
Übersicht
Objekt-Nr. 0-6201
Objektart Wohnung
Objekttyp keine Angabe
Vermarktung Miete/Pacht
Nutzung Wohnen
Land Deutschland
Bundesland Nordrhein-Westfalen
Region Paderborn
PLZ 33102
Ort Paderborn
Preise und Kosten
Kaltmiete 590,00 EUR
Nebenkosten 105,00 EUR
Miete pro m² 6,15 EUR
Kaution 1.280,00 EUR
Garagen 1
Garagen Miete 50,00 EUR
Flächen
Wohnfläche ca. 96,00 m²
Wohneinheiten 5
Ausstattung
Zimmer 3,0
Schlafzimmer 1
Badezimmer 1
Boden Laminat
Befeuerung Gas
Stellplatzart(en) Garage
Abstellraum ja
Zustandsangaben
Baujahr 1920
Energieverbrauch
Ausstellungsdatum 16.05.2018
Ausweiserstellung ab dem 1.5.2014
Energieausweis Art Bedarf
Energieeffiziensklasse G
Endenergieverbrauch kWh/(m²a) 136,9
Endenergiebedarf kWh/(m²a) 202
mit Warmwasser ja
Primärenergieträger Erdgas
Gebäudeart Wohngebäude
Befeuerung Gas
Sonstiges
verfügbar ab 01.12.2025 oder 01.11.2025

Objektbeschreibung

Die Dachgeschosswohnung befindet sich in einem Altbau in der Bleichstraße 30, 33098 Paderborn (Wohnung 5). Sie verfügt über drei Zimmer, darunter ein großzügiger Wohn-/Essbereich mit direktem Zugang zum Balkon. Zusätzlich bietet die Wohnung eine Küche, Diele, ein Badezimmer sowie einen Abstellraum. Der Boden ist mit Laminat ausgestattet.

Beheizt wird die Wohnung über eine Gas-Etagenheizung; die Heizkosten werden direkt mit dem Versorger abgerechnet. Maler- und Tapezierarbeiten liegen in der Verantwortung des Mieters.

Die Kaltmiete beträgt 590,00 Euro. Eine Garage kann für 50,00 Euro monatlich angemietet werden.

Garage: 50,00 Euro
Gesamtkaltmiete: 640,00 Euro zuzüglich Nebenkosten.

Tierhaltung ist nicht erwünscht. Das Mietverhälts ist befristet auf 2 Jahre! 

große Dreizimmerwohnung im Riemekeviertel

-
Bus
-
Autobahn
-
Kindergarten
-
Grundschule
590,00 EUR
Kaltmiete
--
33102 Paderborn
Anbieter kontaktieren
Hinweis: Diese Einwilligung können Sie jederzeit mit Wirkung für die Zukunft widerrufen, indem Sie eine E-Mail an Diese E-Mail-Adresse ist vor Spambots geschützt! Zur Anzeige muss JavaScript eingeschaltet sein! schicken.
Sicherheitscode
Angebot weiterleiten

An:

Von:

Sicherheitscode
Energieausweis
Energieausweis
Ausstellungsdatum 16.05.2018
Ausweiserstellung ab dem 1.5.2014
Energieausweis Art Bedarf
Energieeffiziensklasse G
Endenergieverbrauch kWh/(m²a) 136,9
Endenergiebedarf kWh/(m²a) 202
mit Warmwasser ja
Primärenergieträger Erdgas
Gebäudeart Wohngebäude
Befeuerung Gas

Bade u. Henning Immobilien GmbH

 
 

Westernmauer 30
33098 Paderborn
Tel.: 05251 29062-0
Fax: 05251 29062-20
immobilien@bade-henning.de

 

Bürozeiten

 
 

Mo.: 9:00 - 12:30 und 15:00 - 17:00 Uhr
Di.: 9:00 - 12:30 und 15:00 - 17:00 Uhr
Mi.: 9:00 - 12:30
Do.: 9:00 - 12:30 und 15:00 - 17:00 Uhr
Fr.: 9:00 - 12:30